Descopera Valletta Gardens

Am creat pentru tine un camin cald si luminos, construit cu grija si atentie la detalii, folosind materiale inspirate din natura, linii moderne si spatii aerisite, pentru un stil de viata ancorat in eleganta si functionalitate.

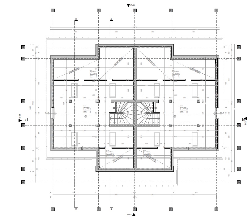
Plan mansarda

  • Mansarda VilaSpatiu deschis, compartimentabil