Descopera Valletta Gardens

Am creat pentru tine un camin cald si luminos, construit cu grija si atentie la detalii, folosind materiale inspirate din natura, linii moderne si spatii aerisite, pentru un stil de viata ancorat in eleganta si functionalitate.

Valletta Gardens

Strada Drumul Bisericii, nr. 48

227 mp - 190.550 €

Ansamblul rezidential Valletta Gardens este situat in cartierul Pipera, intr-o zona ferita de forfota orasului, dar la cateva minute distanta de puncte de interes. Proiectul cuprinde 72 de vile si 6 blocuri de apartamente.

Profita acum de oferta si alege una din primele 5 case disponibile, la un pret promotional! 

Contacteaza-ne

Despre Valletta Gardens

A home for inspired living

Valletta Gardens este un refugiu departe de agitatia orasului, dar si un loc de intalnire cu cei dragi, la sfarsitul unei zile pline. 

Credem ca arhitectura si stilul caminului tau ar trebui sa iti reflecte personalitatea, de aceea am pus accent pe eleganta, frumusete, confort si functionalitate. 

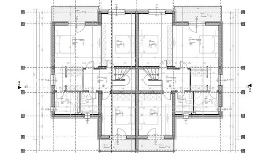
Primul tip de vila pe care il lansam incepand cu aceasta primavara are o suprafata utila de 227 mp si o gradina de 182 mp.

Parterul de tip open space este impartit intre un living generos, bucatarie si un spatiu de dining pe masura. Aici mai regasim o baie si un spatiu de depozitare extrem de util, pentru a pastra tot ceea ce nu vrei sa lasi la vedere.

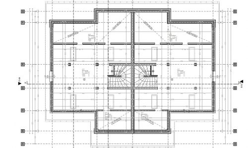
La etaj regasim dormitorul matrimonial cu dressing, doua camere si 2 bai. La mansarda ti-am lasat tot spatiul la dispozitie sa il poti amenaja dupa cum visezi: camera de joaca pentru copii, biblioteca, birou, sala de antrenament sau poate toate laolalta. 

6 Blocuri

72 Vile

La cheie

Garaj

Loc de joaca

Spatii verzi

Beneficii

Living in style

Am construit o comunitate inchisa si sigura, o adevarata gradina secreta a Bucurestiului, pentru un stil de viata relaxat si modern. 

Spatii largi, compartimentare inteligenta, finisaje de calitate - fiecare detaliu de arhitectura si design a fost bine cantarit astfel incat, inca de la intrare sa simti ca ai ajuns cu adevarat ACASA.

Protejat tot timpul

Te poti bucura de liniste si siguranta, cartierul fiind cu acces inchis. In plus, ansamblul beneficiaza de un sistem de supraveghere video 24/7.

Gata sa te muti

Vei primi casa finisata la cheie, nemobilata, dar cu obiecte sanitare in fiecare baie. Asadar, iti ramane doar partea amuzanta: alegerea mobilierului potrivit pentru stilul tau.

Relaxare in aer liber

Am creat alei largi si spatii verzi care sa complimenteze gradinile individuale. In plus, copiii pot socializa intr-un loc de joaca protejat.

Coltul tau de rai

Fiecare casa vine cu o gradina de 180 mp, pe care o poti amenaja asa cum iti doresti. Vei putea astfel sa te relaxezi si sa te bucuri de natura in orice moment al zilei.

Descopera viitoarea ta casa

Galerie Foto

Programeaza o vizionare acum!

+40 725 54 53 54